こんにちは、カルロス工務店のカルロス(@crls1031)です。
今回は東京都墨田区墨田で行った、築古木造戸建2Fの賃貸物件にフルリフォームした事例をご紹介します。
Contents
- 1 物件概要
- 2 主な3つの工事内容
- 3 既存図面と改修後図面
- 4 詳細な工事一覧
- 5 作業中の動画
- 5.1 1日目:築古物件の”和室の洋室化”のポイントは水平に作らないこと!!
- 5.2 2日目:洗面台造作、水平じゃない床に水平の天板を作る工夫とは?
- 5.3 3日目:あら、新築?!襖にクロスを貼る方法!ブヨブヨになっても大丈夫だよ
- 5.4 4日目:塗装の正しい方法とは?!塗装は養生が9割!
- 5.5 5日目:仕上げ塗装と下地塗装の違い。仕上げ塗装は難しいから、単価が上がりますね。
- 5.6 6日目:塗装はケレン → 水拭き → 養生 → 塗装が正しい順序!改めて解説。
- 5.7 7日目:洗面台周りキッチンパネル取り付け、塩ビタイル施工
- 5.8 8日目:水栓の再固定、キッチンパネル貼り、フロアタイル貼りなどラストスパート!
- 5.9 9-10日目:床見切り取り付け、フロアタイル掃除、襖の高さ調整、シール施工など最終日!
- 6 まとめ
- 7 西多摩エリアのリフォーム工事はカルロス工務店へ
物件概要
物件の概要は以下のとおりです。
| 項目 | 内容 |
|---|---|
| 所在地 | 東京都墨田区墨田 |
| 構造 | 木造戸建 |
| 築年数 | (推定)50年 |
| 床面積 | 116㎡(壁芯) |
| 工事内容 | フルリフォーム |
| 総工費 | 206.8万円 |
主な3つの工事内容
1. 和室の洋室化(畳撤去、フローリング化)
現代において入居者には和室より洋室の方が好まれます。
故に、全部の和室の畳を撤去し、フローリングを敷き直すことで洋室にしました。
フローリングといっても木製のフローリングではなく、”塩ビタイル”です。
サンゲツで言えば商品名が”フロアタイル”ですが、これは従来のCF(クッションフロア)より耐久性が高いです。
さらに傷がついたとしても部分的な補修が可能なため、長期で見れば賃貸物件にも望ましい床材と考えております。
CFの方が工事費は安いですが、傷がついて補修したいとなった場合には全部の貼り直しが必要となります。
なので、僕は塩ビタイルでの上割りをリフォームではオススメしております。
2. 木部塗装
柱・梁など、表層に出ている茶色の木部は黒く塗装しました。
こちらの作業を自社で行いましたが、これは塗装屋泣かせの作業であることがのちに判明しました。
それは塗装しない箇所が仕上がっている状態だからです。
もし木部の周りの壁部分がクロスを張り替える予定であれば、そのまま壁にはみ出して大胆に塗装すればいいです。
しかし、今回の場合、木部のみの塗装です。
壁面は仕上がっているとなると、壁面にはみ出すわけにはいきません。
養生は大変だし、養生をせずに塗ろうものなら、細かい刷毛で神経を使うのでとても大変な作業となります。
今回の塗装に関しては見積もりが甘く、部門で言えば大赤字の工事となってしまいました・・・
次からはこういったケースの塗装の工事価格を上げなければですね。
3. 洗面台造作
今回、もともと洗面台のあったところは撤去されている状態でした。
もともとあったのと同様に洗面台を新設しました。
水に強くなるように周りにはキッチンパネルを貼り、床も部分的にフロアタイルを貼りました。
港区赤坂で民泊施設のリフォームをした際にも、同様に洗面台を造作しました。
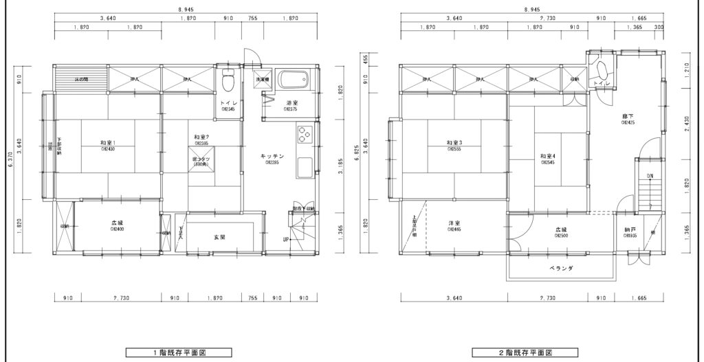
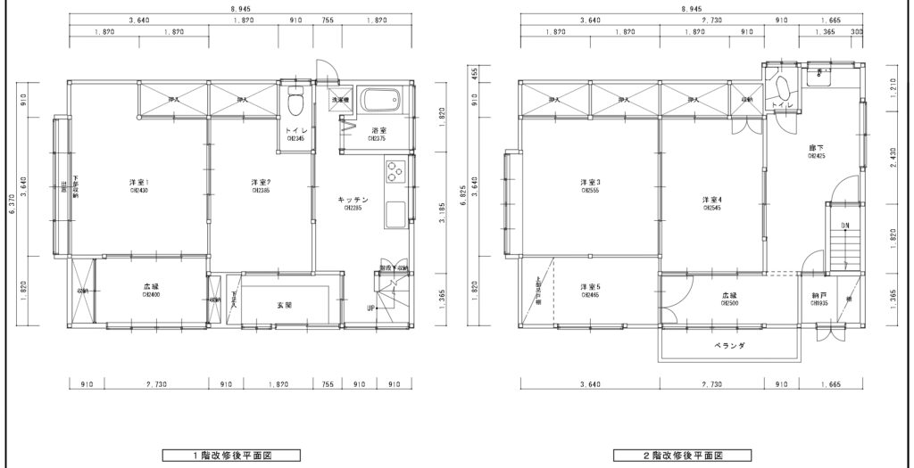
既存図面と改修後図面
既存図面と改修後図面を載せます。
既存図面(BEFORE)
改修後図面(AFTER)
詳細な工事一覧
以下には見積もりに明記されていたり、工事概要書で工事内容を説明する上で記述された詳細な工事内容です。
施主と齟齬がないようにテキストに明記した上で、相互に確認しております。
1F
【 解体工事 】
・畳15枚撤去処分
【 大工工事 】
・15畳分の床下地造作(根太+ベニヤ捨て貼り)
・キッチンパネル張り(正面壁、窓下と左側壁
【 内装工事 】
・塗装工事一式(木枠をOSで黒塗装、壁は白塗装)
・床塩ビタイル張り
・襖張り替え、障子張り替え
【 電気工事 】
・スイッチコンセント交換
・照明交換
【 雑工事 】
・キッチンシーリング
・クリーニング
2F
【 解体工事 】
・畳16枚撤去処分
【 大工工事 】
・16畳分の床下地造作(根太+ベニヤ捨て貼り)
・キッチンパネル張り
【 住宅設備工事 】
・洗面台設置(シーラインカウンター延長+温水器)
【 内装工事 】
・塗装工事一式(木枠をOSで黒塗装、壁は白塗装)
・床塩ビタイル張り
・襖張り替え、障子張り替え
【 電気工事 】
・スイッチコンセント交換
・照明交換
・クリーニング
作業中の動画
カルロス工務店では僕が施工に入った日には作業中の動画を撮るように努めております。
洗面脱衣所がどう出来上がっていくかわかると思いますので、興味のある方はご覧ください!
1日目:築古物件の”和室の洋室化”のポイントは水平に作らないこと!!
2日目:洗面台造作、水平じゃない床に水平の天板を作る工夫とは?
3日目:あら、新築?!襖にクロスを貼る方法!ブヨブヨになっても大丈夫だよ
4日目:塗装の正しい方法とは?!塗装は養生が9割!
5日目:仕上げ塗装と下地塗装の違い。仕上げ塗装は難しいから、単価が上がりますね。
6日目:塗装はケレン → 水拭き → 養生 → 塗装が正しい順序!改めて解説。
7日目:洗面台周りキッチンパネル取り付け、塩ビタイル施工
8日目:水栓の再固定、キッチンパネル貼り、フロアタイル貼りなどラストスパート!
9-10日目:床見切り取り付け、フロアタイル掃除、襖の高さ調整、シール施工など最終日!
まとめ
今回は大幅に工事するわけではなく、入居者に好まれるように表層を中心にリフォームしました。
このデザインによって、入居募集のプラットフォームに載った際に目につくようになれば幸いです。
西多摩エリアのリフォーム工事はカルロス工務店へ
あきる野市・日の出町・青梅市など、西多摩エリアはもちろんのこと
呼ばれればどこへでも飛んでいく所存です!
現地調査・お見積もりは無料ですので、お気軽にご相談ください。



