こんにちは、カルロス工務店のカルロス(@crls1031)です。
今回は東京都港区赤阪で行った、木造アパート2室を民泊施設に部分リフォームした事例をご紹介します。
Contents
工事に至った経緯
僕は現在は現場でトンテンカンテンしておりますが、早稲田大学政治経済学部の出身です。
生粋の学歴エリートなのですが、今は現場で汗水垂らしているっていうね・・・w
最近、円安の影響で儲かる民泊がブームですが、早稲田出身者の民泊関係者を集めた「民泊稲門会」というLINEグループが誕生しておりました。
僕は運営者ではなく立ち上げに関わる施工者ですが、そこに参加させてもらい、よく民泊施設化に関する施工をしていることをそのLINEグループで投稿しておりました。
そこで知った僕の学部の後輩くんメッセージをくださり、工事をご依頼頂きました。
彼は真っ当に超有名大企業に勤めており、さすがや、、、と思った次第です(僕とは違うw)
物件概要
物件の概要は以下のとおりです。
とてもいい立地なので、商売繁盛していただき、2号店・3号店と繋がればいいなと思っております!
| 項目 | 内容 |
|---|---|
| 所在地 | 東京都港区赤坂(赤坂駅 徒歩8分) |
| 構造 | 木造アパート(メゾネットタイプ) |
| 築年数 | 58年 |
| 床面積 | 52.88㎡(壁芯) |
| 工事内容 | 部分リフォーム |
| 総工費 | 315.2万円 |
主な3つの工事内容
今回の物件は賃貸募集のところだったため、清掃も終わりとても綺麗な状態でした。
ただ、民泊施設にするには手を加えた方がさらによくなるため、部分的にリフォームすることになりました。
主にした工事は以下の3つです。
1. シャワーユニット設置 / 脱衣所新設
まず大きな大工工事が伴った部分はシャワーユニット設置、および脱衣所新設です。
今回2部屋工事させてもらいましたが、片方は在来の浴室、もう片方はユニットバスが設置されておりました。
以下が工事前の状態です。
現状ですと脱衣所と洗面所がありません。
故にこれらを解体し、0808(80cm × 80cm)のシャワーユニットを導入し、余ったスペースを脱衣所兼洗面所に変更しました。
民泊施設には過度な浴室設備は不要で、シャワーさえあれば問題ありません。
とても綺麗なユニットバスを解体するのはもったいないです。
ただこの工事をすることによって需要が創出されます。
そしてその結果、たくさんの方に活用いただけるようになるのを考えれば、それはそれは素晴らしいことでしょう!
2. 造作洗面台製作
そして、浴室を解体してできた脱衣所スペースには洗面台を新設しました。
既製品の洗面台を入れるにはとても日常的すぎたので、今回は造作で洗面台を作ることにしました。
とてもシンプルな仕上がりですが、キッチンパネルがあることで実用的にも申し分ないです。
綺麗に仕上がってとても良かったと思います。
3. 押入のワークスペース化
最後は押入れの再活用です。
民泊施設にはたくさんの収納スペースが不要なため、各部屋一つの押入れをワークスペースに変更しました。
これが現状の状態です。
至極普通の押入れです。
これを人が乗るために床を補強しつつ、Panasonicのインテリアカウンターを導入してリモートワークができるような環境にしました。
これで外国人旅行者の旅先でのちょっとした仕事も問題ないでしょう!
また別の押入れでは中段を撤去し、ハンガーパイプを取り付けて収納力を向上させたりもしました。
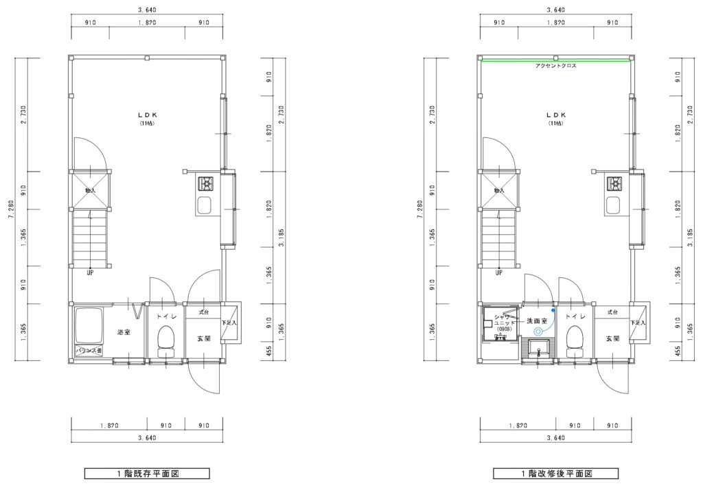
既存図面と改修後図面
主な工事項目について解説しましたが、他にも細かな工事はたくさんあります。
以下には全体の既存図面と改修後図面を載せます。
比較してご確認ください。
1部屋目
1F[BEFORE / AFTER]
2F[BEFORE / AFTER]
2部屋目
1F[BEFORE / AFTER]



2F[BEFORE / AFTER]



315.2万円の見積の内訳書
部分リフォームとはいえ、一般的に一番予算のウエイトが大きな水廻りに着手しております。
今回はシャワーユニットの導入だけですが、故に300万円を超える大きな工事となりました。
ただし、今回は2部屋同時に工事をしたため、1室あたり単純に150万円程度の工事。
なかなか工事自体はミニマムに抑えられたのではないでしょうかね?






資材数も一つずつ明記することで、明朗会計であることを努めております。
なお、黄色く塗られている部分は協議の最中に追加になった部分や変更箇所です。
詳細な工事一覧
以下には見積もりに明記されていたり、工事概要書で詳細を説明する上で記述された詳細な工事内容です。
施主と齟齬がないようにテキストに明記した上で、相互に確認しております。
1部屋目 1F




【 水回り 】
・既存在来浴室解体
・シャワーユニット設置(TOTO 0808Lタイプ)
・床上げ、壁造作
・洗面化粧台造作(パイン集成材、洗面ボウル)
・建具取付(Panasonic VERITIS)
・クロス貼り(SP SP2598、FINE FE76611)
・CF貼り(HOMEFLOOR HM-12008)
【 玄関 】
・式台:CF貼り(H12122:既存と同一)
・土間:塩ビ貼り(IS-2156)
【 階段 】
・ CF貼り(H12122 :既存と同一)
【 建具 】
・ シート貼り(TA 4779:ネイビー色)
【 クロス 】
・ LDK:アクセントクロス(BEST BB2647)
1部屋目 2F




【 クロス 】
・ 洋室1:アクセントクロス(BEST BB2610)
【 神棚 】
・ダウンライト取り付け
・天井製作工事
・天井クロス貼り
【 押入ワークスペース化 】
・カウンター設置(Panasonic インテリアカウンター)
・ダウンライト設置
・スイッチ取付
・USB付きコンセント取付
2部屋目 1F



【 水廻り 】
・既存ユニットバス解体
・シャワーユニット設置(TOTO 0808Lタイプ)
・床上げ、壁造作
・洗面化粧台造作(パイン集成材、洗面ボウル)
・クロス貼り(SP SP2598、FINE FE76611)
・CF貼り(HOMEFLOOR HM-12008)
【 建具 】
・ シート貼り(TA-4768:深緑)
【 クロス 】
・LD:アクセントクロス( FINE FE76515 )
2部屋目 2F



【 クロス 】
・洋室1:アクセントクロス( FINE FE76514 )
【 押入ワークスペース化 】
・カウンター設置(Panasonic インテリアカウンター)
・ダウンライト設置
・スイッチ取付
・USB付きコンセント取付
水回り設備一覧
今回はシャワーユニット設置に伴い、TOTOの0808タイプのものを採用しました。
以下が仕様書となり、事前に施主に共有した上で確認してもらっております。


デザイン仕様書
上記で説明したように、賃貸募集の物件だったため、室内は完成されている状態でした。
ただ民泊施設としてはあまりにも日常的すぎてシンプルでした。
故に滞在者に楽しんでもらえるように、アクセントクロスを貼り直すことでデザイン性を向上させるように施工しました。
施主からは「和」をテーマにデザインを検討してほしいとのことでしたので、
- キャッチー和柄
浮世絵やド派手な和文様。AirBnB上で目立ちたい。 - 無難和柄
色味控えめで、でもちゃんと和。 - モダン和mix
和の要素を残しつつ、ちょいスタイリッシュ。
の3パターンで提案し、その中から採択されたのが以下の仕様書です。




余談:浮世絵や富士山をイメージしていた
AirBnBの界隈ですと、プラットフォームで映えるために、強めの和柄を取り入れていることがよくSNSで見られます。
故に最初には「浮世絵」や、銭湯にあるような「富士山」のような柄を提案しようとしました。
が、施主から最初に言われたのが”FINE FE76611”。


「全然”和”じゃない」と思いましたが、施主の希望されたものを選びました。
これはこれでシックに仕上がっていい感じになりました!
作業中の動画
カルロス工務店では僕が施工に入った日には作業中の動画を撮るように努めております。
洗面脱衣所がどう出来上がっていくかわかると思いますので、興味のある方はご覧ください!
1日目:洗面脱衣所の新設工事スタート!床・壁下地を丁寧に施工中
2日目:洗面脱衣所製作・壁、天井下地工事
3日目:押入・ワークスペース化工事、既存壁解体・下地製作
4日目:押入・ワークスペース化工事、天板設置、石膏ボード貼り
5日目:洗面脱衣所製作・シャワーユニット設置後、壁下地製作・UB枠設置工事
6日目:洗面脱衣所製作・石膏ボード貼り、水洗位置調整
7日目:洗面脱衣所製作・石膏ボード貼り、入り口建具設置
まとめ
ということで、無事に引き渡しを終えました。
施主がフリーレントの間になんとかしたいと希望されていましたが、最短で施工するように努め、無事に終えました。
素晴らしい立地にいい宿ができたので、商売繁盛していただき、次に繋げて頂きたいですね!
素晴らしい工事となりました!
西多摩エリアのリフォーム工事はカルロス工務店へ
あきる野市・日の出町・青梅市など、西多摩エリアはもちろんのこと
呼ばれればどこへでも飛んでいく所存です!
現地調査・お見積もりは無料ですので、お気軽にご相談ください。








